Promotion économique
Objectif
La promotion économique de l'agglomération de Delémont a pour but de promouvoir les zones d'activités de l'agglomération et de soutenir de nouvelles implantations d'entreprises sur le territoire.
Les actions mises en place sont coordonnées avec les instances cantonales et communales ainsi qu'avec divers organismes économiques de la région.
Voici ci-dessous les terrains disponibles pour l'implantation d'entreprises dans les 9 communes.
Route de Courtételle - 2'768 m2
Informations générales
Zone mixte A
Fin de la liste déroulante
Fin de la liste déroulante
Courrendlin - Choindez - 70'000 m2
Informations générales
Fin de la liste déroulante
Courroux - ZARD - 150'000 m2
Informations générales
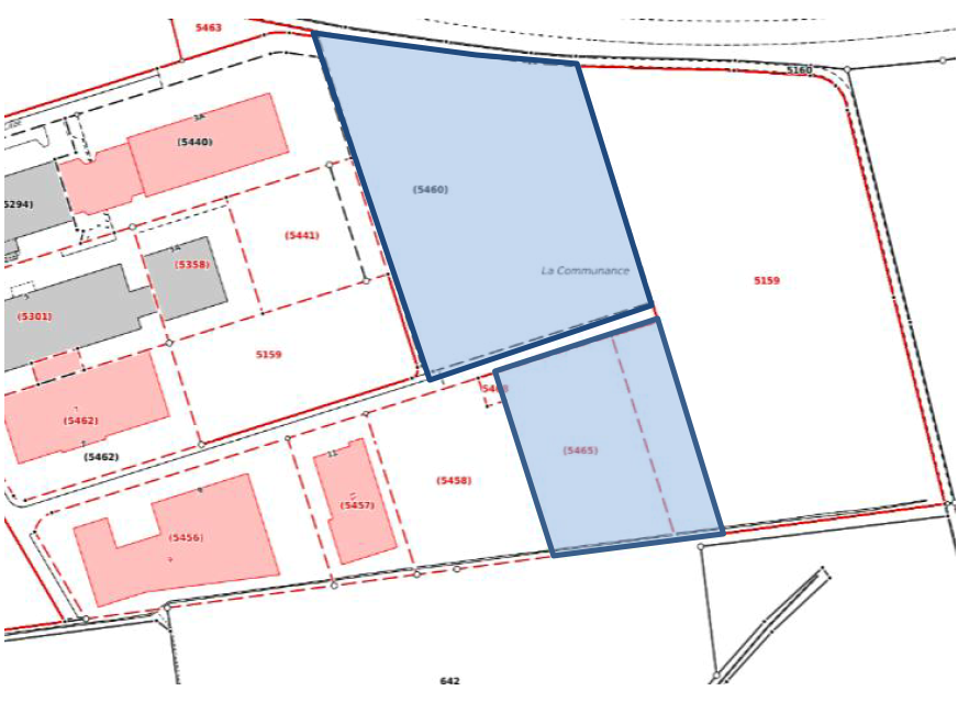
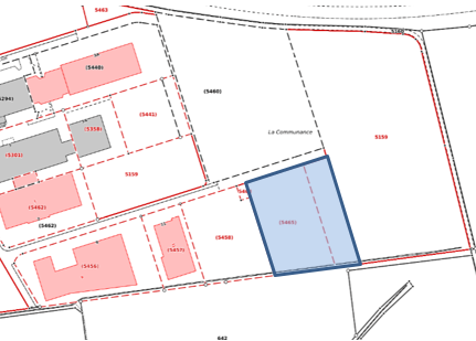
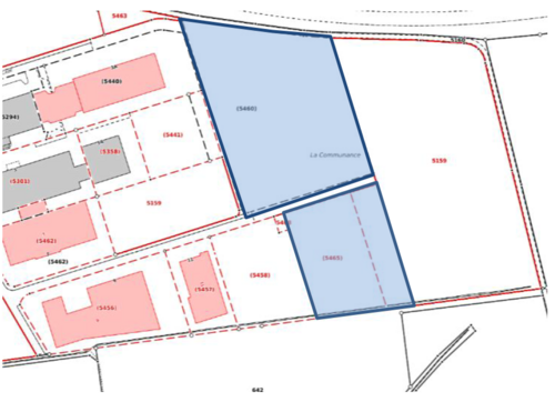
Courroux - Croix Sud - 9'351 m2
Informations générales
Fin de la liste déroulante
Zone d'activités B, secteur e
2800 Delémont
Zone d'activité B, secteur e
2800 Delémont
Zone d'activités B, secteur b
2800 Delémont
Zone d'activités B, secteur b
2800 Delémont
Zone d'activités B, secteur b
2800 Delémont
Zone d'activités B, secteur b
2800 Delémont
Fin de la liste déroulante
Ballastière
Informations générales
Zone d'activités A, secteur a
2800 Delémont
Fin de la liste déroulante
Fin de la liste déroulante
Develier - Quatre-Faulx - 1'384 m2
Informations générales
Zone mixte
Route de Courtételle
Develier - centre du village - 13'500 m2
Informations générales
Zone centre
2802 Develier
Route de Delémont
Fin de la liste déroulante
Rossemaison - Route de Delémont - 2'700 m2
Informations générales
Zone mixte A, secteur c
2842 Rossemaison
Fin de la liste déroulante
Haut du village - 945 m2
Informations générales
Zone mixte A
2805 Soyhières
Clos Devant - 5'386 m2
Informations générales
Zone mixte, secteur d
2805 Soyhières
Fin de la liste déroulante
Morbez - 700 m2
Informations générales
Zone d'activités
2826 Corban
Sur la Rive - 1'000 m2
Informations générales
Zone centre A, secteur a
2826 Corban
Fin de la liste déroulante
La Romaine - 9'000 m2
Informations générales
Zone d'activités A
2824 Vicques
Fin de la liste déroulante
Fin de la liste déroulante




